Доставка
- Доставка по Санкт-Петербургу в пределах КАД до подъезда – бесплатно
- Доставка в регионы до терминала транспортной компании – бесплатно
Оплата
- наличными при оплате в магазине
- карточками Viza и MasterCard
- оплата по счету
- безналичный расчет (для юр. Лиц)
Описание камин Nordpeis AKROPOLIS
Akropolis относится к каминам, выполненным норвежской фирмой Nordpeis. Камины Nordpeis работают на дровах, имеют высокую тепловую эффективность и классический дизайн. Топливо, благодаря применению современных технологий пост сгорания, используется оптимально и сгорает практически без остатка.
Корпус модели выполнен из бетонного композита, который может быть окрашен в любой цвет.
Топка - чугунная, футерованная изнутри специальной огнестойкой керамикой "Thermotte ™ ".
Складное стеклокерамическое окно топки выдерживает нагрев в 800 градусов Цельсия. Прозрачность стекла поддерживается встроенной технологией "чистое стекло".
Дизайн каминной модели - классический, оживленный красивыми декоративными деталями: неглубокой нишей в верхней части корпуса и полукруглой столешницей.
Выходной каминный патрубок рассчитан на диаметр дымохода в 175 мм.
| Дизайн и исполнение | классический камин, кантри камин, модерн камин, печь |
| Бренд | Nordpeis (Норвегия) |
| Расположение в помещении | пристенное, угловое |
| Номин.мощность | 8 кВт |
| КПД | 78 |
| Вес | 591 кг |
| Теплообменник | Нет |
| Артикул производителя | 203534 |
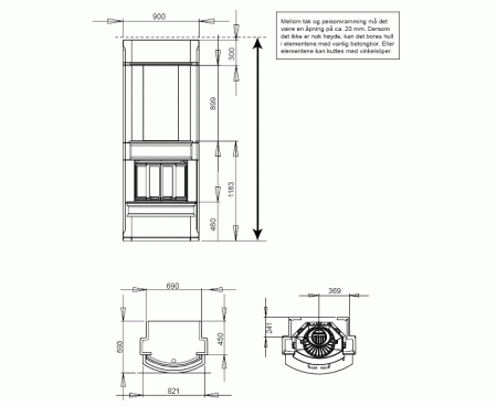
| Ширина | 900 мм |
| Высота | 2382 мм |
| Глубина (габарит без ручки) | 693 мм |
| Опции каминов и печей | вторичный дожиг, варочная поверхность, система чистое стекло, наличие дымосборника топки |
| Способ открытия дверцы | складная |
| Диаметр дымохода | 175 мм |
| Наличие балки | нет |
| Тип нагревания | конвекционный |
| Материал облицовки | композит (бетон) |
| Форма стекла и дверей | складная (призма) |
| Вид топлива | дрова и брикеты |
| Футеровка | термотт/аккумотт(керамика) |
| Наличие зольника | без зольника(подовое горение) |
| Максимальная длина дров | 550 мм |
| Материал изготовления топки | чугун |
| Присоединение дымохода | поворотный |
|
Категория
|
Готовый камин, Печь камин |
|
Площадь помещения
|
70 м2 |
|
Производитель
|
Nordpeis (Норвегия) |
|
Тип топлива
|
Дрова, Брикеты |
|
Ширина
|
900 мм |
|
Глубина
|
693 мм |
|
Высота
|
2382 мм |
|
Стекло
|
Призматическое |
|
Мощность
|
8 кВт |
|
Объем помещения
|
200 м³ |
|
Материал облицовки
|
Композит жаропрочный (бетон) |
|
Диаметр дымохода
|
175 мм |
|
Тип расположения
|
Пристенный |
|
Дожиг воздуха
|
Есть |
|
Вес
|
591 кг |
|
Подача воздуха извне
|
Есть |
|
Чистое стекло
|
Есть |
|
Материал
|
Чугун |
Для покупки товара в нашем интернет-магазине выберите понравившийся товар и добавьте его в корзину. Далее перейдите в Корзину и нажмите на «Оформить заказ» или «Быстрый заказ».
Когда оформляете быстрый заказ, напишите ФИО, телефон и e-mail. Вам перезвонит менеджер и уточнит условия заказа. По результатам разговора вам придет подтверждение оформления товара на почту или через СМС. Теперь останется только ждать доставки и радоваться новой покупке.
Оформление заказа в стандартном режиме выглядит следующим образом. Заполняете полностью форму по последовательным этапам: адрес, способ доставки, оплаты, данные о себе. Советуем в комментарии к заказу написать информацию, которая поможет курьеру вас найти. Нажмите кнопку «Оформить заказ».
По Санкт-Петербургу в пределах КАД до подъезда – бесплатно
В регионы бесплатная доставка до терминала транспортной компании.
по России за 24 часа
всем покупателям
и стандартам качества
